5 Units Apple Cabin Houses for Australia
Project Overview
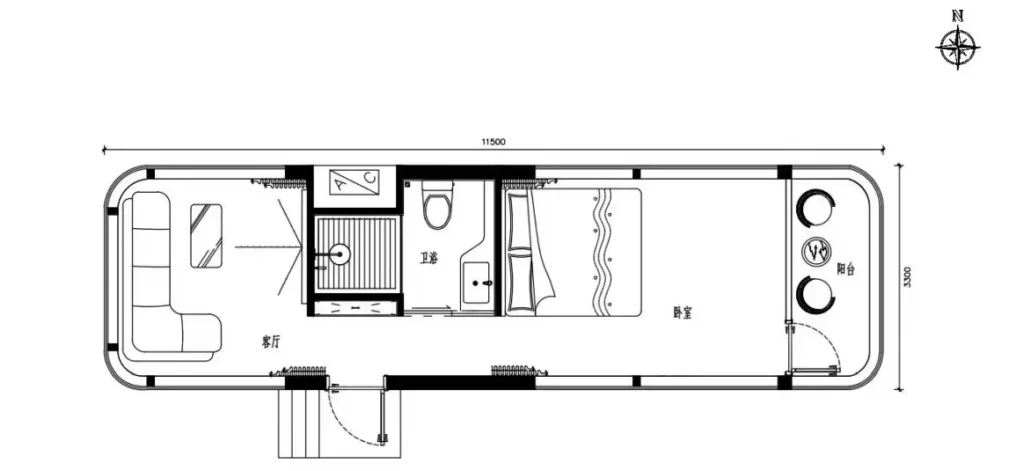
RuiLong successfully delivered 5 Apple Barn modular homes to an Australian client as vacation accommodations in a coastal area. Each unit features approximately 50㎡ of floor space, including a kitchen, private bathroom, and lounge area. The cozy and comfortable interior meets both short-term leisure stays and extended vacation needs.
- Project Purpose: Vacation accommodations
- Product Type: Apple cabin house
- Quantity: 5 Units
- Time: 2025
- Location: Australia

Client Requirements
Located in a coastal tourism zone, the client sought rapid deployment of operational vacation homes via modular construction, specifying the following product requirements:
- Sturdy structure with strong weather resistance to withstand coastal humidity and sea breeze erosion;
- Complete living functionality with essential infrastructure for independent occupancy;
- Harmonious exterior and comfortable interior space aligning with coastal resort ambiance;
- Short supply cycle with convenient transportation and on-site installation to minimize construction duration.
Solution
Addressing these requirements, Ruilong delivered a comprehensive apple cabin house modular housing solution:
- Modular Design for Rapid Delivery and Assembly: The main structure is prefabricated in the factory, requiring only basic connections and safety reinforcement on-site before occupancy.
- Integrated Functional Interior Configuration: Each unit includes a kitchen, private bathroom, furniture-ready zones, and ventilation/lighting systems to ensure a comfortable vacation experience.
- Weather-Resistant Materials & Anti-Corrosion Processes: Utilizes high-strength steel structures and corrosion-resistant exterior panels to enhance stability in coastal, humid, and high-temperature environments.
- Efficient Logistics & Professional Shipping: The project was safely shipped via Qingdao Port with standardized packaging reinforcement, arriving at the Australian site within 25 days to ensure timely construction progress.

Project Feedback
Upon completion, the client expressed high satisfaction with the housing’s exterior design, living comfort, and installation convenience:
“The modular apple cabin house provided by Ruilong perfectly suits our seaside resort project. It offers comfortable spaces, streamlined construction, and smooth transportation. We look forward to deepening our collaboration with Ruilong.”





